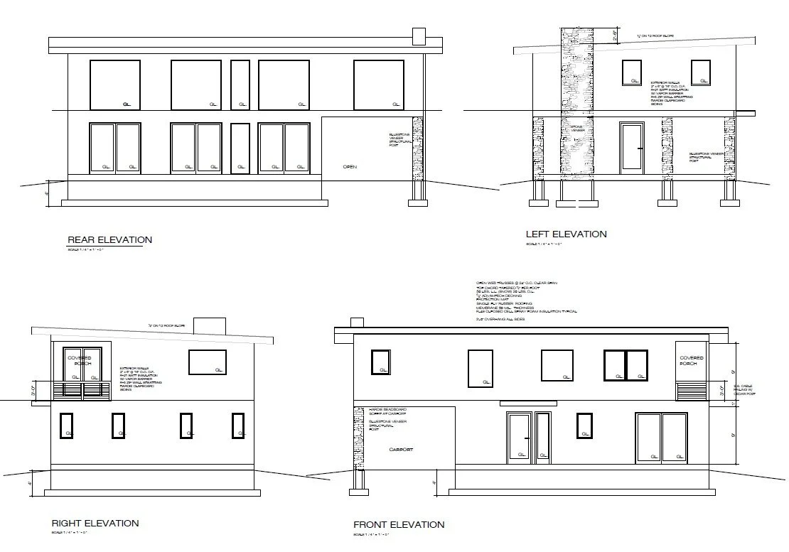
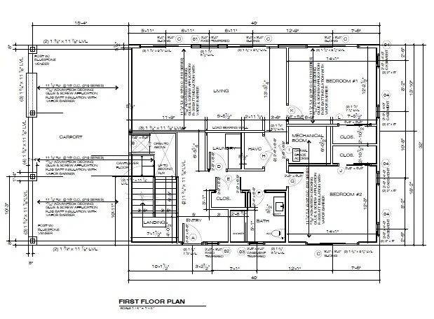
Hudson Valley Luxury

4 Bedroom, 3 Bathroom - 3100 SF

Available Fall of 2026

Previous
Previous

The Pool House